
AVANTAGES DE LA TINY GREENKUB
PANNEAUX DE STRUCTURE

BARDAGE
REMORQUE


Livraison gratuite partout en France métropolitaine.
Garantie 10 ans sans raccordements et 15 ans avec.
Isolation thermique conforme à la norme RT 2012.
Prise en charge des démarches administratives par Greenkub.
TROIS NIVEAUX DE FINITIONS
HUISSERIES

REVÊTEMENTS DE SOL

HUISSERIES

REVÊTEMENTS DE SOL

TERRASSE & PERGOLA

HUISSERIES

REVÊTEMENTS DE SOL

TERRASSE & PERGOLA

CLÉ EN MAIN ET SANS SURPRISE
SERVICES INCLUS
La petite maison en bois tout droit venue des États-Unis
Vous êtes lassé des constructions traditionnelles et vous êtes à la recherche d’un type d’habitat alternatif, les Tiny House sont faites pour vous. Historiquement, ces maisons en bois sont des mini maisons inspirées des mobiles homes qui ont la particularité d’avoir une surface habitable de quelques mètres carrés et avec un plan de maison optimisé pour le gain de place et le rangement.
La Tiny House est le plus souvent fixe aux États-Unis, mais il est possible de la transformer en caravane en la montant sur une remorque pour adopter un mode de vie plus nomade. Montée sur roues, il est rare de la voir utilisée en résidence principale, car contrairement à une tiny house sur fondations, ce mode de vie impose de nombreuses contraintes comme l’utilisation de toilettes sèches, ou encore la dépendance en énergie imposée par les panneaux solaires.
83%
100%
60%
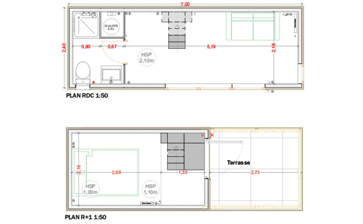
Stop à l’agrandissement, place à l’optimisation
Le coeur de la Tiny house, ce n’est pas de pouvoir se déplacer, c’est le mode de vie minimaliste. La culture du gain de place, l’optimisation des petits espace notamment avec l’installation systématique d’une mezzanine. Ça peut être un véritable challenge d’implanter une cuisine équipée, un espace de vie et une chambre dans une roulotte, même en utilisant les combles mais c’est la philosophie tiny house et la philosophie des structures en bois livrées clés en main Greenkub.
Il vous faudra repenser totalement le rangement, aucun espace ne doit rester sans fonction, des rangements sous l’escalier aux tirroirs d’angles en passant par les rangements de portes, chaques mêtres carrés vous servira de stockage.
Devenir propriétaire sans auto construction
Malgré la demande croissante, les constructeurs de maisons en bois types tiny house ne sont pas légions et avec ça, de plus en plus de particuliers s’improvisent auto constructeurs de leur maisonnette mais cela n’a rien d’aisé. En effet, le travail du bardage, des poteaux ou de l’ossature bois demandent des connaissances en menuiserie assez poussées. De la même manière, si vous souhaitez que votre construction bois soit durable, résiste aux intempéries et ait des performances énergétiques correctes, il vous faudra emmagasiner beaucoup de connaissances et de savoir faire.
Pour cette raison, Greenkub et ses architectes mettent à votre service leur expérience dans la construction de maisons en bois pour vous garantir des économies d’énergie et un habitat de qualité.












